Villa in Las Palas

  • 236,000€
Fuente Álamo, LAS PALAS, Spain, Las Palas, Fuente Álamo, Murcia, Spain
  • Villa
  • Property Type
  • 2
  • Bedrooms
  • 1
  • Bathroom
  • 175
  • sqft
For Sale
Villa in Las Palas
Fuente Álamo, LAS PALAS, Spain, Las Palas, Fuente Álamo, Murcia, Spain
  • 236,000€

Description

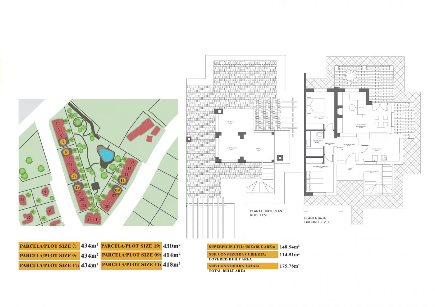
KEY READY SEMI-DETACHED VILLA IN FUENTE ALAMO, MURCIA Residential of townhouses, independent and semi-detached villas in Fuente Álamo, Murcia. There are seven different models of houses to choose from, designed to suit everyone’s taste. Rustic designs combined with top quality materials and a focus on comfortable living space there is something for everyone. The residents of this private community of beautiful, spacious homes will also be able to enjoy their own communal gardens and swimming pools. This unusual design semi-detached villa has 2 bedrooms and 1 bathroom, independent kitchen, living room with patio doors leading onto the covered porch and semi covered roof top terrace. An options for a private pool at an extra cost. Fuente Álamo de Murcia is a town and municipality in the Region of Murcia, southern Spain. It is situated 22 km northwest of Cartagena and 35 km south west of Murcia. The town lies in the basin of the Mar Menor surrounded by the mountains of Algarrobo, Los Gómez, Los Victorias and the Carrascoy. The water from these mountains flows down into the Rambla de Fuente Álamo and then onto the Mar Menor. Fuente Álamo located 30 minutes from Murcia – Corvera airport.

Details

Updated on December 28, 2025 at 12:25 pm
  • Property ID: N6871
  • Price: 236,000€
  • Property Size: 175 sqft
  • Bedrooms: 2
  • Bathroom: 1
  • Property Type: Villa
  • Property Status: For Sale
  • Address Las Palas, Fuente Álamo, Murcia, Spain
  • City Fuente Álamo
  • State/county MURCIA
  • Area LAS PALAS
  • Country Spain

Similar Listings

Mortgage Calculator

Monthly
  • Down Payment
  • Loan Amount
  • Monthly Mortgage Payment
%
%

Contact Information

View Listings
Iain Mitchell

Enquire About This Property

Compare listings

Compare
Iain Mitchell
  • Iain Mitchell